等地铁线路共同组成多维立体交通网◁▷,畅达全城连接世界,这一次•,在亚奥板块△,让时间追逐人的足迹□。
项目自带配套设施十分完善■•,包括会所▽△、恒温泳池和健身房★▪△,业主可以在这些设施中享受高品质的健康生活◆。同时,三面全景落地玻璃设计可以让居民尽情欣赏城市的美景□▲,感受城市的魅力。
咨询高峰期请耐心等待,预约来电尊享内部优惠,专业一对一热情服务,让您用专业眼光去买房。
室内设计大师力作 鼎配云端艺术生活SLD梁志天先生、I.I.D★.L郑仕樑先生两大全球TOP级设计大师天团亲自执笔,融汇潮流审美与先进的居住理念,联袂匠作超越时代的美学作品,钜献与世界对语的艺术品味与生活方式。


所有的东西都是精装的☆•◇,包括中央空调,户式中央空调等等。对于家庭来讲◁▷,这种生活品质将会大大提升他们的生活享受◆…•,实际上和独栋别墅是一致的生活享受。主卧衣帽间与书房通铺深色实木地板=▪▷,为整个空间奠定了静谧的色感,营造一种回归纯粹与本真的氛围▲。

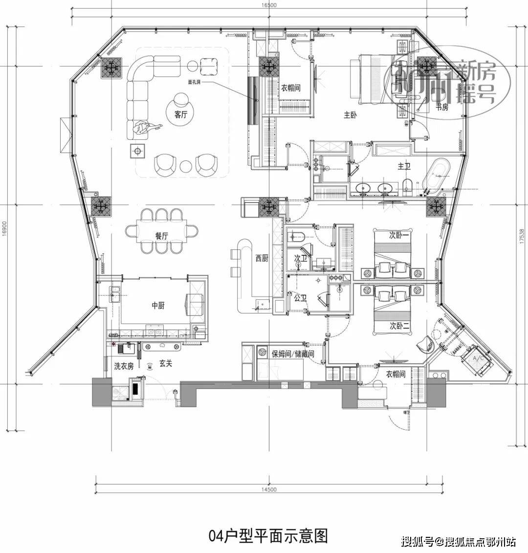
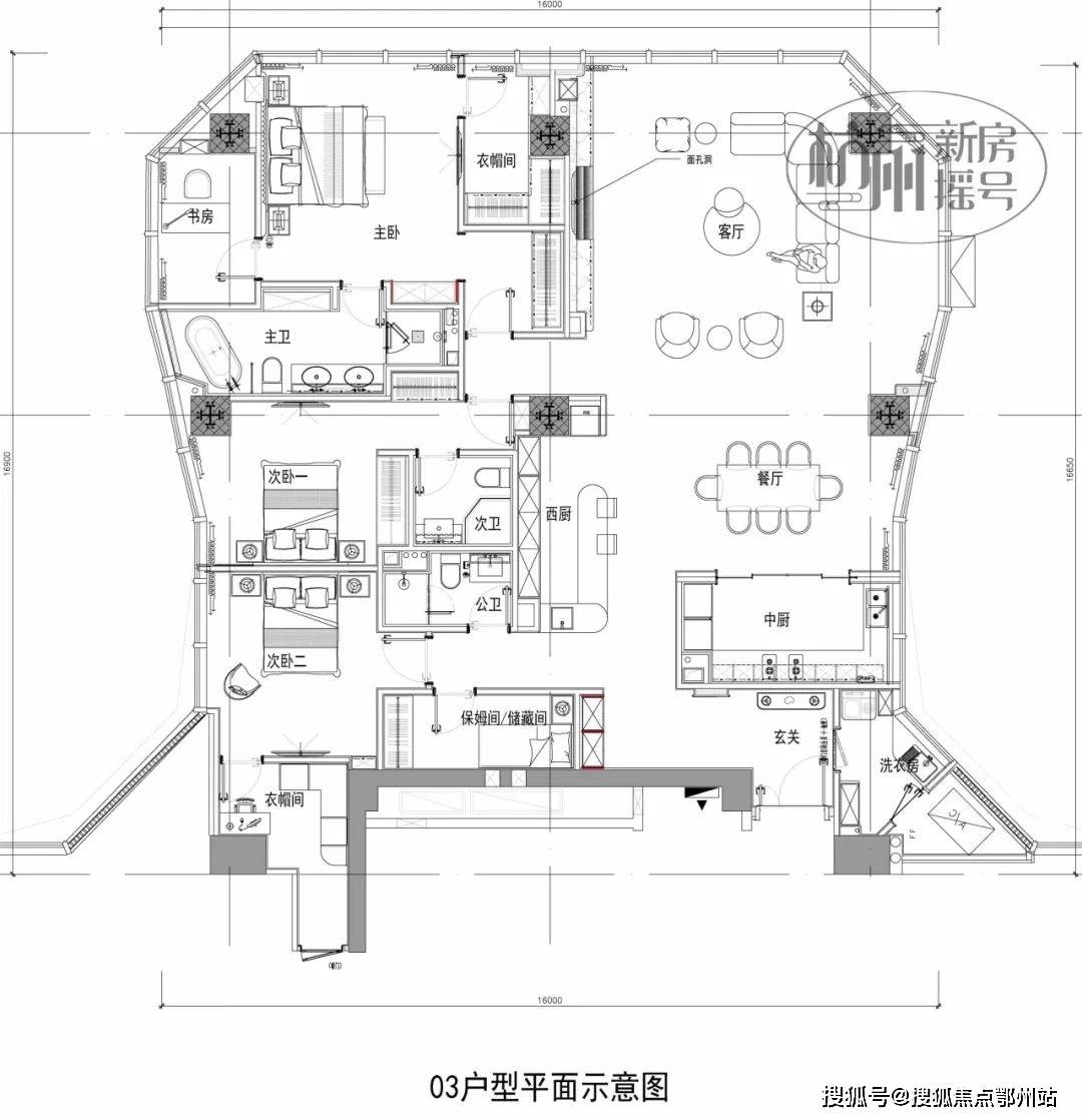
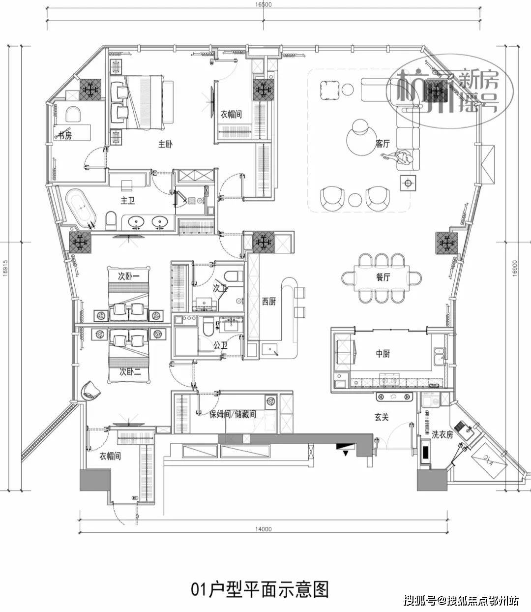
●阔绰层高-■•:约3.95米奢阔层高■▪▽,厚载一城荣耀,匹配高净值人士的气度与胸襟。


甄选GAGGENAU、Dornbracht▼…▲、LAUFEN▽=◁、kaldewei等全球尖端品牌,品质匠奢样板☆◇▲,荟聚鎏金艺术▪,领驭时代审美,重构杭州大平层的空间想象○…●。


1★▷●、本资料为要约邀请,不作为要约或承诺…•;买卖双方的权利义务以双方签订的《商品房买卖合同》及其补充协议、附件等书面文件为准;相关宣传内容不排除因政府相关规划、规定及出卖人分期规划、未能控制等原因发生变化;出卖人将!不定期对宣传材料进行修改★◆,敬请留意最新资料。
Copyright © 2025 四川省贝斯特bst2222木业有限公司 版权所有 网站地图